Vous êtes un Professionnel:

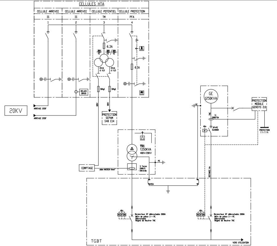
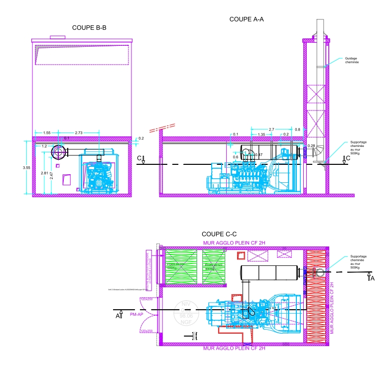
Je vous propose de réaliser vos Plans Mécaniques, Climatisation, CVC, Plomberie, implantation;
de suivre des dossiers, d'assister aux réunions.
Je peux être consultant, pour vous apporter mon savoir sur des affaires.
Faire de la formation en entreprise pour vos dessinateurs qui souhaiteraient en savoir plus,
ou approfondir leurs connaissances notamment sur Autocad.

valopur valopur valopur valopur valopur

Vous êtes un particulier:

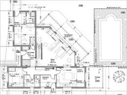
Vous avez un projet dans le bâtiment, la mécanique ou tout autre,
je suis là pour le réaliser, pour vous aider dans toutes vos démarches.
Par exemple, je peux vous aider à déposer votre permis de construire, de suivre le projet
jusqu'à sa réalisation. Constructions neuves ou rénovations, sur croquis ou sur plans.

valopur valopur valopur valopur valopur